1 概述
先進復合材料具有比強度和比剛度高,性能可設計,抗疲勞,耐腐蝕性能好和易于整體成形等諸多優點,將其用于航空航天結構上,可比常規的金屬結構減重25%~30%,并可明顯改善其氣動彈性特性,提高飛行性能,這是其它材料無法或難以達到的。隨著計算機技術和數控技術的不斷發展,各種各樣的軟件和數控設備相繼出現,使復合材料構件研制過程以數字量傳遞成為可能,為復合材料構件實現數字化制造創造了良好的條件。另一方面,在國內飛機制造業中,復合材料構件的設計制造大多仍沿用傳統的模擬量尺寸傳遞體系,數字化設計制造技術雖得到了實際應用,并取得了一定的效益,但基本處于孤立的狀態,尚未實現復合材料構件從設計,工藝,工裝,制造到檢測整個過程中的信息共享,沒有打通整個數字化設計制造環節,致使現有的數字化設計制造技術不能充分發揮其應有的作用。美國波音公司在波音777型飛機型號研制中采用數字化技術,使研制周期縮短50%,出錯返工率減少75%,成本降低25%,已經成為數字化設計制造技術在飛機研制中應用的標志和里程碑。在波音787飛機項目中采用FiberSIM軟件進行復合材料構件產品的數字化設計,并將設計數據向全球的合作伙伴進行發放,保證了復合材料構件數據的唯一性和準確性。飛機復合材料構件數字化生產線技術,重在將復合材料構件設計制造技術與數字化技術相結合,實現復合材料構件設計與制造各環節數字化,各環節之間的數據流暢通和復合材料構件在并行工作模式下的設計,工藝,制造,檢測,裝配全過程的集成。
2 飛機復合材料構件數字化生產線總方案
飛機復合材料構件數字化生產線總方案如圖1所示。

圖1 飛機復合材料構件數字化生產線總方案
本工程以計算機網絡環境和并行工作模式為基礎,在企業工程數據管理系統支撐下,由兩個大的環節構成——數字化設計中心和數字化制造中心。其中數字化設計中心主要完成復合材料構件的相關設計任務,包括構件的數字化定義,鋪層設計與排樣,鋪放與纏繞軌跡設計,CAE分析與仿真,工裝設計,工藝設計與制造過程仿真等,數字化制造中心主要完成毛料剪裁(預浸料和蜂窩),激光鋪層定位,自動鋪放,自動鋪絲與纏繞,固化成型,切邊鉆孔,部件裝配,質量檢測等制造任務。
從圖1中可以看出,構建復合材料構件數字化生產線,除實現兩大環節的數字化外,還必須保證各環節之間數據流暢通。基于數字化生產線總方案,圍繞復合材料構件數字化設計,數字化工藝設計,數字化工裝設計,數字化制造,數字化檢測,并行工作管理,工作流程管理和質量控制等開展研究,并將精益制造理論和思想融合到整個生產體系中。
3 復合材料構件數字化生產線技術研究
3.1 復合材料構件數字化生產線體系
飛機復合材料構件數字化生產線體系研究主要圍繞復合材料構件數字化產品設計,數字化工藝設計,數字化工裝設計,數字化制造,數字化檢測,并行工作管理,工作流程管理,質量控制等開展,并將精益制造理論和思想融合到整個生產體系中。
(1)復合材料構件數字化生產線構成
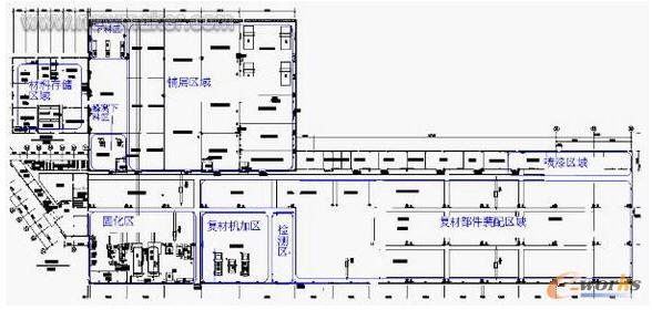
復合材料構件生產線平面布置圖如圖2所示:

圖2 復合材料生產線平面布置圖
從圖2中我們可以看到:復合材料構件生產線由9個區域組成,即材料存儲區,預浸料下料區,蜂窩下料區,鋪層區,固化區,復材機加區,復材檢測區,復材部件裝配區,噴漆區。總面積達5萬余平方米,在亞洲是最大的。在企業近年的技術改造項目實施后每個區域都可實現數字化。
(2)復合材料構件生產線流程
復合材料構件數字化生產線典型流程如圖3所示:

圖3 數字化生產線典型流程
3.2 復合材料構件數字化設計技術
復合材料構件的最顯著工藝特點是在完成材料制造的同時完成產品的制造。因此,復合材料構件的數字化定義與其它材料零件的定義方法有明顯的區別,其數據不僅包含構件的幾何信息,鋪層信息,還要包含相關的材料制造信息等非幾何數據。
3.2.1 FiberSIM解決方案
FiberSIM可以完全集成于用戶已有的CAD系統中,使CAD系統成為高性能的設計/制造復合材料構件的軟件工具。該軟件可以提供專業的工程設計環境,高效地處理復合材料及其結構的復雜性問題,能夠捕捉CAD系統中復合材料構件的完整定義,管理復合材料數據,在項目內部共享復合材料構件的定義。FiberSIM復合材料工程設計環境見圖4。

圖4 FiberSIM復合材料工程設計環境
FiberSIM軟件獨有的鋪層仿真技術,能夠預測復合材料如何與復雜的表面貼合,支持整個復合材料的工程過程,該軟件使工程師同時在構件幾何,材料,結構要求以及工藝過程約束之間進行權衡,使用FiberSIM軟件,工程師能快速可視化鋪層形狀和纖維方向,在設計階段即發現制造問題,并采取相應的糾正措施,實現DFM從初步設計,詳細設計直至制造車間,設計師借助該軟件很容易創建和轉換設計,工程圖以及相關的數據,并使零件數據在FiberSIM軟件,設計,制造以及商業應用之間進行交換和傳遞。
FiberSIM可選模塊有:分析接口模塊,文檔生成模塊,平面圖樣輸出模塊,激光投影模塊,纖維鋪放接口等,以構件定義信息為源頭,向強度分析,工藝設計,工裝設計,制造過程仿真和相應的制造設備傳遞復合材料構件的幾何信息,材料信息,鋪層信息等。
3.2.2 復合材料構件數字化定義
在設計階段的產品定義過程中是以工程數據集為核心來組織數據,是支持產品數字化設計,制造全過程的基礎,是制造,檢驗的重要依據。一個數據集是包含產品的幾何信息,繪圖數據以及相關信息的一個或幾個CAD模型,一般同時存在三維模型和二維模型,二者分別在三維空間工作模式和二維繪圖工作模式中建立,但它們不是完全獨立的,二者之間存在著關聯關系,二維視圖中的元素由空間的實體或曲面引出,對原空間實體或曲面的任何修改都會自動反映在二維視圖上。
(1)復合材料構件的三維模型定義
由于其定義方法的特殊性和復雜性,復合材料構件的最終形狀是由許多鋪放在模具表面的鋪層固化形成的,每個零件的不同區域厚度會有所不同,而且是逐步變化的。座艙罩頂棚鋪層定義如圖5所示,通過從設定的鋪層信息直接生成鋪層表面和三維實體,這些表面可用于制造數字實物模型,生成零件鋪疊表面,產生配套工裝的內表面和中間鋪層表面等。座艙罩頂棚實體模型如圖6所示,三維實體用于定義構件的形狀以及定位特征(如成形面的參考曲面,零件模型的定位點等幾何信息),以便在重量和重心分析,數字化預裝配,工裝設計,運動部件的模擬運動分析等過程中應用。因此,復合材料構件三維實體建模的核心問題是表現材料制造信息的鋪層設計。鋪層設計中有兩個重用的概念:鋪層和鋪層集,并且鋪層集和鋪層都有編號。

圖5 座艙罩頂棚鋪層定義

圖6 座艙罩頂棚鋪實體模型
(2)復合材料構件的二維模型定義
在數據集中,三維模型是最主要的數據,但二維圖紙模型也是必不可少的,一般由三維模型生成。在模型的二維視圖中,需要完整的定義出復合材料構件的結構形式和幾何外形尺寸等信息,在目前生產實際中,二維圖紙仍然是進行復合材料構件制造加工,檢驗,質量保證的重要依據,也是供應商評估和投標的重要依據。在復合材料構件的二維圖紙上,需要有剖面示意圖,鋪層圖,鋪層標注,鋪設取向標注以及鋪層表等內容,鋪層表用來對照零件的鋪層,材料,取向等信息,如圖7所示。

圖7 復合材料構件二維圖紙及鋪層表的放大圖
3.2.3 復合材料構件工藝設計
基于CAPPFrameWork和ORACLE,結合企業復合材料工藝設計及管理的特點,開發了具有企業特點的復合材料構件快速工藝設計系統。系統主要功能模塊包括:產品結構管理,工作任務分配,工藝設計審批,工藝知識管理,材料定額信息管理,工藝文檔管理,用戶角色管理,系統配置工具等。
3.2.4 復合材料構件工裝快速設計
工裝的數字化設計是實現復合材料構件數字化生產線技術的關鍵環節之一,主要內容包括標準件庫,典型工裝結構庫的建立,快速裝配技術研究和復合材料工裝快速設計系統開發等。在項目實施中,利用CATIA的建模功能建立組成組件的子零件,然后裝配生成組件,組件為Product形式。這種解決方案可在CATIA交互環境下運行,使用標準件庫時,提供三維預覽窗口,并且預覽模型能示意各主要參數,從而可以直觀地了解各參數的意義,進而可以脫離手冊的限制,能夠在CATIA當前裝配模型內生成所選組件的實體模型。基于CATIA二次開發了標準件批裝配模塊,實現了基于裝配特征的標準件的自動裝配。圖8所示為組件預覽界面。

圖8 組件預覽界面

圖9 下料數據
3.3 復合材料構件數字化制造技術
復合材料構件的數字化制造技術主要是結合我公司的軟硬件的實際情況,包括復合材料自動下料,激光投影等各方面技術。
3.3.1 預浸料數控下料
復合材料構件生產過程中,預浸料下料是一個費時,費力,繁瑣的工序,我公司采用專門的數控切割設備-自動剪裁機進行預浸料的平面切割,實現預浸料的自動下料。應用FiberSIM軟件設計的復合材料構件的每一三維鋪層信息展開為二維鋪層展開數據后,經鋪層切割數據轉換接口生成預浸料排樣數據,直接輸入自動剪裁機控制軟件指導材料自動切割。自動剪裁的預浸料消除了手工下料樣板,每一鋪層的形狀和纖維方向更加準確,并且都印有鋪層編號,減少了鋪放過程中的錯誤,其下料比手工下料效率可提高3倍以上,節約原材料20%左右,此外,排樣是優化材料利用率的主要因素。圖9是座艙罩頂棚的排樣下料數據。
3.3.2 激光投影系統的應用
復合材料專用設計/制造軟件FiberSIM基于構件的CAD三維設計數據生成激光投影數據輸入到激光投影系統中,通過特殊反光鏡,控制激光束將構件鋪層形狀輪廓線上的點依次投影到模具表面,由于點投影的更迭移動速度極快(每秒300m以上),在操作者眼中,模具或零件表面會生成相應的邊界輪廓線,操作者可根據該輪廓線進行有關的定位操作(如定位鋪疊等),從而實現各鋪層的精確定位,免除了傳統的鋪疊樣板。圖10是基于構件的三維實體模型生成激光投影數據的過程。

圖10 激光投影數據的生成
3.4 復合材料數字化生產線集成技術
復合材料構件數字化生產線以全面采用數字化技術為主要標志,采用計算機定義,描述,管理和使用復合材料構件開發過程中所包含的數據以及這些數據之間的相互關聯。復合材料構件數字化設計和數字化制造是復合材料構件數字化生產線的主要組成部分,兩部分通過設計與制造之間的數據傳遞,轉換實現數據的集成。
3.4.1 數字化生產線數據傳遞關系
復合材料構件數字化生產線與傳統生產方式的顯著區別在于采用數字量形式對產品進行全面描述及數據傳遞,實現復合材料設計,材料,工藝的一體化。生產線數據流主要包括設計軟件與分析軟件之間的數據傳遞,產品設計與工裝設計間的數據傳遞,設計與工藝之間的數據傳遞,設計與制造系統的數據傳遞等。圖11是復合材料構件數字化生產線數據傳遞關系。

圖11 復合材料構件數字化生產線數據傳遞關系
(1)設計軟件與分析軟件之間的數據傳遞
典型的復合材料構件設計首先基于預期的載荷確定設計要求,結合分析提出的設計要求以及其它使用環境等要求初步選定材料和成形工藝。初步選定材料和成形工藝后,通過FiberSIM軟件與分析軟件之間的接口將幾何模型和粗略的鋪層定義數據輸入有限元分析軟件進行結構計算以及結構優化,并將區域劃分以及各區域的詳細鋪層定義數據反饋回復合材料工程環境進行鋪層詳細設計,設計完畢再將鋪層詳細定義數據包括纖維真實走向和其它細節等輸入分析軟件包進行設計驗證,如此反復修改,驗證直至達到最優設計,分析是對設計結果的驗證,設計滿足分析提出的要求,設計人員與分析人員之間組成了一個閉環。
(2)設計與工藝之間的數據傳遞
工藝設計是連接產品設計和制造的橋梁,是產品從數字化概念定義走向實物的必不可少的信息轉換環節。工藝部門接收設計部門發放的產品設計數據包括二維圖紙,技術文件等,包含了產品的項目信息,構型信息,零組件的幾何,材料,鋪層信息。工藝人員對產品的設計結構進行分解和轉換,變成可用于指導生產的工藝結構。與此同時,對每一個要生產的零組件設計其加工工藝,設計或選擇其工裝夾具,指定原材料和計算材料定額,統計標準件,外購件等非生產零件的需求,編排工時定額等。工藝部門除了產生用于指導生產的工藝規程數據文件外,還要進行材料定額等各種統計匯總,并將數據傳向采購,庫存,調度等生產準備和管理部門,以保證生產的順利進行。
(3)設計與工裝之間的數據傳遞
設計傳遞到工裝系統的數據包括:二維圖紙,三維模型,技術文檔等。
(4)設計與制造系統的數據傳遞
設計傳遞到制造系統的數據包括鋪層展開圖,下料數據,激光投影數據,技術文檔,纖維鋪放數據等。
鋪層展開圖:鋪層設計完成后,應用FiberSIM軟件曲面展開技術,將構件的三維實體模型逐層展開生成鋪層的展開數據,將每一個曲面鋪層展開為一個對應的二維平面圖形,用以輸入到排樣系統和自動下料機進行自動排料和自動剪裁。
激光投影文件:應用FiberSIM軟件,基于構件的CAD三維設計數據生成激光投影數據,輸入到激光投影系統中進行鋪層定位, 在成形模具上進行激光投影。
3.4.2 典型應用系統集成
對應復合材料構件數字化生產線中的數據流動關系(如圖12所示),需要集成的應用系統包括設計系統內部的集成,設計系統與分析系統的集成,設計系統與工藝設計系統的集成,設計系統與工裝設計系統的集成,以及設計系統與制造系統的集成等。

圖12 數字化生產線中的數據流集成
(1)設計系統內部的集成
復合材料構件數字化設計為后續優化,分析,制造等環節提供數據的源頭,是構建復合材料構件數字化生產線的基礎。除常用的CAD外,復合材料專用設計/制造軟件是實施復合材料構件數字化設計不可缺少的工具。目前世界領先的復合材料專用設計/制造軟件有CATIA CPD模塊和VISTAGY公司開發的FiberSIM 軟件。前者與CATIA系統全面集成,后者亦能完全集成到CATIA,Pro/E,以及UG等CAD軟件中。復合材料專用設計/制造軟件與已有CAD系統的集成提供了高效的復合材料數字化設計/制造工具。
(2)設計系統與分析系統的集成
復合材料構件數字化設計/制造軟件FiberSIM提供數據接口輸出進行有限元分析所必需的數據,保證了設計和分析共享同一CAD主模型。
(3)設計系統與工藝快速設計系統的集成
設計系統與工藝快速設計系統之間通過數據接口實現復合材料構件二維圖紙,技術文件,BOM等信息的集成與共享。
(4)設計系統與工裝設計系統的集成
在并行設計工作環境中,產品設計與工裝設計在同一平臺上實現無縫集成,工裝設計工程師直接利用產品設計工程師提供的復合材料構件產品三維數據進行復合材料構件工裝的設計,并將工裝邊界信息傳遞給產品設計工程師進行復合材料構件預浸料鋪層的詳細設計。
(5)設計系統與制造系統的集成
除采用數字量形式對復合材料構件進行全面描述及數據傳遞之外,復合材料構件數字化設計/制造軟件FiberSIM提供數據接口以聯系設計和制造環節,在并行設計過程中使制造與設計定義直接結合,實現了設計到制造車間的無縫集成,其集成過程如圖13所示。復合材料設計人員完成鋪層設計后,自動從設定的鋪層定義生成三維實體后,基于該三維CAD模型生成鋪層展開數據,為制造做數據準備,鋪層展開數據進一步提取生成下料機專用的下料文件和支持Virtek和General Scanning等激光投影系統的激光投影編碼(或提供中介APT格式文件),通過數據接口將上述文件信息分別輸入到自動剪裁機和激光鋪層定位系統,自動進行優化排樣,下料以及各鋪層的精確定位。

圖13 設計系統到制造車間的集成
3.4.3 復合材料構件制造過程數據管理系統開發
復合材料車間制造執行系統是實現協同生產,信息的集成共享和生產精細化管理的手段。該系統主要實現的功能包括:生產作業計劃和調度管理,物料需求配送管理,零件執行跟蹤,庫房管理,崗位管理,人員管理,權限管理和統計管理,以及ERP和CAPP接口等功能。系統框架圖如圖14所示。

圖14 車間制造執行系統框架圖
4 取得的成果
復合材料構件數字化生產線建設是一項龐大而復雜的系統工程,我們本著總體規劃,分步實施的原則開展了項目的初步研究并取得了一些階段性成果,主要有:
(1)制定了我國第一條飛機復合材料構件數字化生產線的總體建設方案,初步建立了復合材料構件數字化生產線體系框架,對國內飛機制造業研究建立復合材料構件數字化生產線具有重要參考價值;
(2)改變了長期以來一直采用金屬件設計方法進行復合材料構件設計的模式,對復合材料構件產品每一鋪層進行數字化定義,實現了將復合材料構件產品數字化定義數據從設計初期傳遞至工裝設計,工藝設計,數控剪裁設備和激光鋪層定位系統,基本打通了復合材料構件在現有計算機軟,硬件及數字化制造設備條件下從設計到制造過程的數據流;
(3)以復合材料構件研制流程為主線,研究復合材料構件數字化工程環境中數據拓延和傳遞關系,開發了復合材料構件制造過程信息管理系統,工藝快速設計系統,工裝快速設計工具集等軟件系統和數據接口,實現了CAD/CAPP/CAM/ERP的集成;
(4)初步建立了工藝基礎數據庫,工裝標準件庫,典型工裝結構庫;
(5)編制了復合材料制件工裝建模要求和數控編程通用要求兩項航空行業標準。
5 實例驗證
5.1 直升機全復合材料座艙罩頂棚研制
在直升機全復合材料座艙罩頂棚設計過程中,應用數字化手段進行構件的數字化產品設計,數字化工藝設計,數字化工裝設計,數字化制造及數字化檢測等,驗證了從設計,工藝,工裝到制造的數字化流程(見圖15)。

圖15 設計與工藝制造一體化流程圖
5.2 蜂窩夾層結構板件設計
蜂窩夾層結構板件設計應將蜂窩下面的鋪層和蜂窩上面的鋪層各設計一個laminate,便于鋪層展開。各鋪層展開時有時會存在問題,為保證鋪層精度和便于工人操作,有些鋪層下料文件需進行適當調整,以滿足需要。
(1)蜂窩下面帶有開孔的鋪層需帶著開口展開成下料圖,但對于帶有開口超幅寬的鋪層,軟件展開下料圖(見圖16),需要在下料微機上對鋪層下料文件進行調整(見圖17);

圖16 展開下料圖

圖17 下料文件調整
(2)對于蜂窩夾層結構板件,由于蜂窩具有一定的高度,蜂窩上面板的鋪層通過FiberSIM軟件生成的下料圖,不是很規范(見圖18),與相應鋪層的激光投影范圍不協調,制造困難,需要對不規范的平面圖樣輸出文件進行調整(見圖19),調整時要參考各鋪層的激光投影范圍進行調整,經首件驗證后,確定各鋪層準確的下料圖。

圖18 蜂窩上面板鋪層下料圖

圖19 蜂窩上面板鋪層調整
6 結束語
飛機復合材料構件數字化生產線技術研究內容涵蓋了復合材料構件數字化生產線體系,復合材料構件數字化設計,復合材料構件數字化制造,復合材料構件數字化檢測,復合材料構件數字化生產線集成技術五大部分,本項目以制定我國第一條飛機復合材料構件數字化生產線的總體建設方案為首要任務,理清思路,突出重點,并充分吸收國內外先進的經驗,以打通復合材料構件從產品設計到工藝設計,工裝設計,構件制造等過程的數據流為首要目標開展各項研究工作,取得了階段性研究成果,對航空,航天等行業建立數字化復合材料構件生產線具有重要的參考作用。
轉載請注明出處:拓步ERP資訊網http://m.sdyuan.com/
本文標題:直升機復合材料構件數字化生產線技術研究
























