1 引言
自上世紀60年代三維CAD系統問世以來,三維造型技術一直處于飛速的發展當中,從開始的簡單線框造型到自由曲面造型再到參數化的實體造型,CAD技術經歷了一次又一次的技術革命。在基于歷史的參數化建模技術稱霸近二十年后,同步建模技術誕生了。同步建模是一種獨立于歷史的建模方法,突破了傳統順序結構和特征樹的限制,在對當前模型進行修改的過程中,可直接對當前特征進行修改,并用同步關系維護已存在于模型中的幾何約束條件。在幾何構建或修改時,特征操作歷史不被存儲,不被一系列特征建立時間順序所依附。Solid Edge是有Siemens PLM公司于2008年推出的一款基于同步建模技術的軟件。與NX同步建模不同的是,Solid Edge不僅僅只用于模型修改,還能直接用于零件的全新建模,同時具備CAD數據的重用功能,用戶可直接編輯來自其他CAD系統的數據模型,更加方便了各類型數據之間的交換。
冷鐓機是一種大型的鍛壓設備,是一種以墩為主用來快速大批量生產高質量螺栓螺母的專用設備。當前的冷鐓機由過往單工位發展到如今的多工位,多工位全自動冷鐓機作為一種高技術含量、精密、自動化的成型設備,極大地提高了緊固件行業的發展。因此對冷鐓機的研究與優化對緊固件行業的發展具有推動作用。多工位全自動冷鐓機的結構較為復雜,在進行優化設計時采用合理的三維軟件尤為重要。
2 同步建模與參數化建模對比分析
同步建模技術的出現,是3D造型技術發展史上的又一個里程碑,它在傳統的參數化建模和顯示建模的基礎上,加入了同步解析,3D尺寸驅動、2D轉3D等先進技術,包含了前兩者的優點,擯棄了它們的缺點,實現了靈活編輯、快速修改、多CAD數據直接交換等特點。同步建模技術與傳統三維建模技術相比主要的優勢有幾下幾點:
(1)實現設計變更的高效性
傳統的基于歷史的參數化建模的CAD設計系統中,若需要對原有的模型進行特征添加、變更或修改,需要找出該特征在特征樹中的位置,若存在其他特征依附于此特征,則對其特征的操作可能會影響其他依附于它的子特征,這樣在修改時計算量會變得非常大、速度慢,還有可能導致其他子特征的缺失、損壞等。若零件較為復雜或需變更的特征在特征樹中較為靠前的位置,則可能導致較多特征損壞甚至整個模型的損壞。
使用同步建模技術對零件某一特征進行修改時只會對要修改的特征產生變化而不影響其子特征,且在其之前創建的特征會增加可以適應變更后模型的特征,使得模型的修改更加靈活、高速。
(2)用戶操作的簡潔性
同步建模技術提供了一種操作新體驗,Solid Edge基于Windows平臺,界面與Microsoft Office幾乎一致,且兼容Windows系統的部分功能。最新版本的Solid Edge還增加了傳統建模技術做不到的功能如:陣列特征識別、按表創建陣列、增加設計意圖面板等諸多功能,這些都使用戶的操作更加直觀簡潔,加快了產品的優化設計過程,大大縮短了優化設計的時間,提高工作效率。
(3)對于歷史數據良好的繼承性
對于絕大多數的產品,尤其是早期設計的產品,保存下來的都是二維數據,這樣在產品的優化過程中需對其進行重新建模,傳統的建模方式不能直接將二維數據轉換為三維數據,只能采取重新新建草圖、經拉伸旋轉等一系列操作形成三維模型。Solid Edge支持二維數據格式,無需數據轉換直接打開dwg格式的二維數據,在二維圖紙的基礎上進行一系列操作為其添加三維特性,從而快速形成三維模型。此外,同步技術將二維數據與三維數據有效關聯起來,將以往的三維模型尺寸(PMI)驅動圖紙尺寸的方式改變為圖紙尺寸與模型尺寸互相驅動的方式,使模型與圖紙之間能夠迅速關聯即時更新。
(4)對于外部數據良好的重用性
對于外部導入的模型通常只有一個體特征,由于缺少其他的參數如尺寸參數、特征參數等,在傳統的建模環境下難以對其進行編輯。由于同步建模技術不基于特征可以直接對模型進行三維尺寸的驅動設計,可以更加智能的利用外部環境的CAD數據。
3 同步建模技術在冷鐓機優化設計中的應用
在對冷鐓機進行優化設計的模型修改過程中,同步建模技術的優越性主要體現在以下幾個方面:
(1)修改速度
如圖1所示的冷鐓機床身模型,該模型的特征樹上共有1058個特征。為使保證冷鐓機在工作時的穩定性,需要增加其機架與底座的連接板寬度,圖中高亮顯示的拉伸7為需要修改的特征,處于特征樹比較靠前的位置。盡管此特征的修改不會影響其他的特征,但是在參數化環境下,對其修改后,系統需對在此之后的所有特征進行更新,因此,這一操作花費了大約60s的時間。而且,修改后系統會出現1052條相關特征的錯誤警告,如圖2所示。

圖1 NX順序建模環境中的冷鐓機床身模型

圖2 警告提示
若使用同步建模技術,其修改就變得得高效許多,如圖3所示,在Solid Edge中打開零件,選中需要拉伸的面(如圖3中高亮顯示的面)拉伸到需要的距離,這個過程不需要更新其他任何特征,修改過程僅需2s,速度提高約30倍。

圖3 兩種方式的速度對比
(2)陣列特征的修改
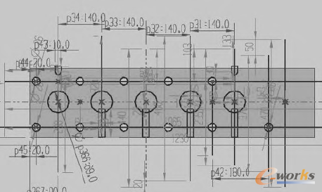
原有的冷鐓機為5工位冷鐓機,現需增加一個過渡工位,原有的整體尺寸不變。這一改變需要修改動模和定模部分的多個零件,修改過程較為繁瑣。本文選取定模部分的定模板為例(如圖4所示),現有的定模板模型為參數化設計所得,上面的孔均由草圖陣列經拉伸所得。若同樣適用參數化的修改方法,則需要修改草圖,再重新拉伸成孔陣列。在修改草圖的過程中,孔間距需重新計算、且修改草圖過程和重新拉伸過程多為重復工作。此外,如果遇到如圖5所示的雜亂無章的草圖尺寸會使得草圖的修改難度增大且浪費時間。與陣列孔對應的還有很多其他特征或陣列,需同時對所有相關聯的特征同時修改,否則會導致模型損壞(如圖6所示)。導致工作量增加、工作效率降低。

圖4 定模板參數化模型

圖5 雜亂的草圖尺寸

圖6 修改后的模型
Solid Edge ST8擁有基于同步技術的陣列識別功能,可以對其他數據格式的模型的特征進行陣列識別,并直接修改陣列個數,并對陣列間距進行自動變更。無需修改草圖,大大減少了工作量并提高了工作效率,經實際操作對比發現,對于這一修改的效率提高了10倍以上。

圖7 特征識別方法修改陣列
(3)2D轉3D功能
若對早期設計的產品進行功能改進,其產品的三維模型丟失或沒有三維模型,只有二維圖紙和實體產品,雖然是優化設計但是其建模過程卻如同重新設計過程一樣,需對產品的所有特征進行重新建模,這樣就造成了時間以及人力資源的浪費。Solid Edge擁有基于同步技術的2D圖紙轉換三維實體模型的功能,可以直接利用dwg格式的圖紙來進行拉伸形成三維模型,這樣就會大大減少了工作量,縮短了優化設計的時間,提高了優化設計的效率。
Solid Edge具有十分良好的數據重用性,完全支持來自AutoCAD、NX、CATIA、Pro/E等等幾乎所有CAD軟件的數據格式并可在建模環境下打開.Dwg格式的圖紙文件(如圖8所示)。

圖8 Solid Edge支持的數據格式
在建模環境下打開冷鐓機曲軸的圖紙后將自動生成草圖,在界面中顯示出草圖面,選擇實體命令中的旋轉命令將出現如下的對話框。

與傳統的建模方式不同的是,Solid Edge的旋轉要素可以為面,這樣可以更加快速精準的選取要旋轉的區域,使得旋轉操作更加便捷。在模型建立后,用戶可以直接對二維圖紙上的標注進行修改即可驅動三維模型,實現了圖紙驅動模型的新型建模方式。

圖9 Solid Edge支持的數據格式

圖10 冷鐓機曲軸模型
4 小結
不基于歷史的同步建模技術實現了無約束設計,設計師可以根據需要快速方便的修改模型,也可以在不斷地重復修改中找到最合理的優化設計途徑。結合Solid Edge的易操作性和同步建模的高效性,設計師在對產品進行優化設計時的工作量大大減少,工作效率大幅度提升。以同步建模技術為核心的Solid Edge正逐漸成為設計師熱衷的設計軟件,將成為提高生產效率的有效工具。
核心關注:拓步ERP系統平臺是覆蓋了眾多的業務領域、行業應用,蘊涵了豐富的ERP管理思想,集成了ERP軟件業務管理理念,功能涉及供應鏈、成本、制造、CRM、HR等眾多業務領域的管理,全面涵蓋了企業關注ERP管理系統的核心領域,是眾多中小企業信息化建設首選的ERP管理軟件信賴品牌。
轉載請注明出處:拓步ERP資訊網http://m.sdyuan.com/
本文標題:同步建模技術在冷鐓機優化中的應用























