BIM是以三維數字技術為基礎,集成了建筑工程項目各種相關信息的工程數據模型,是對該工程項目相關信息的詳盡表達。建筑信息模型是數字技術在建筑工程中的直接應用,以解決建筑工程在軟件中的描述問題,使設計人員和工程技術人員能夠對各種建筑信息做出正確的應對,并為協同工作提供堅實的基礎。建筑信息模型同時又是一種應用于設計、建造、管理的數字化方法,這種方法支持建筑工程的集成管理環境,可以使建筑工程在其整個進程中顯著提高效率和大量減少風險。BIM 設計使建筑、結構、機電等各專業基于同一個模型進行工作,實現真正意義上的三維集成協同設計,使各專業能夠更好的配合,及時解決設計中遇到的問題,極大地避免了施工中的浪費。
傳統機電設計仍存瓶頸
傳統機電設計還處于基于CAD 軟件的二維設計模式,CAD 技術曾從手工繪圖中解放了設計人員,大大的提高了設計效率。但它仍然只是一個二維繪圖工具,無法成為智能設計工具,主要存在四方面問題:一是工作效率低。傳統的機電設計,設計人員必須將設計的三維結構構思好,再用線條繪制表達二維圖形,加上各種尺寸標注,工作量大而且繁瑣,無法將精力完全集中在機電設計的優化和創造性構思上。二是可視化差,交流困難。二維的設計圖紙難以反映復雜建筑空間中種類繁多、數量巨大的各工種管線和設備全貌,可視化差,交流困難。三是設計中常與其它專業發生沖突。機電各專業設計的內容數量多,功能復雜,設計周期短,實際工程中容易與結構梁及機電本身的位置發生沖突,有時甚至需要反復的管線綜合,常常會引起工程返工、延期、影響美觀,造成不必要的損失。四是資料信息管理困難。設計過程中需要的大量原始數據和規范等還是依靠手工查詢,對于大型復雜項目的設計捉襟見肘。由于沒有統一的管理系統,大量的基礎設計資料分散在每個設計人員中,難以對其進行系統管理,而且數據的出錯率大大增加,數據的一致性和設計質量得不到保證。
AECOsim Building Designer 軟件雖然市場占有率不是很高,但其底層核心是受到建設行業普遍認可的三維設計平臺MicroStation,行業延展性較強,數據兼容性較好。依托項目文件管理平臺ProjectWise,能實現各專業、各階段人員實時參與,實時協同的BIM 工作模式。
資源整合 協同管理
隨著項目的進展,項目過程文件逐漸增多,尤其在項目數量繁多的情況下,若沒有對項目文件有一個良好的管理,不僅僅會在尋找文件上浪費大量時間,同時也極易造成協同間發生成不必要的錯誤。
對于文件和文件夾屬性自帶的是遠遠不夠的,管理平臺可以制作文件與文件夾的屬性模板,針對不同的文件類型給予不同的屬性樣板,將需要經常瀏覽的信息可直接放在屬性中,以便自己與別人查看文件內容以外的信息。
在項目協同期間,對于人員的權限管理是非常有必要的,可以避免不必要的誤操作,對于有人員流動的項目要時時更新人員權限。文檔可以記錄對其進行更新的人員以及更新者對其進行的操作,不僅可以加強文檔的安全性,而且方便管理人員在不打開文件的情況下了解到項目進展情況。
適時對接 及時反饋
三維設計的理念與二維設計截然不同,設計的方式方法也不同,但一個基本的理念被沿用了下來:機電的設計都要基于建筑和結構的信息模型,在他們的信息模型的基礎上進行設計。所以無論何種建筑,都要在建筑專業提供了正確的信息模型之后,機電設計才能得以正常進行。

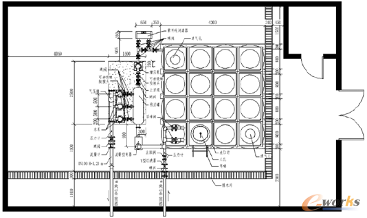
機房部分三維模型
事實上如果設備專業和建筑專業同處一個工作環境中,軸網和標高均為協同共享,在設計過程中,由于所需的工作平面比較多,可以通過建立ACS 坐標的方式來快速選擇和切換工作平面。如果設備專業和建筑專業沒有同處于一個工作環境中,則需要手動來建立軸網和標高,這里比較傾向于使用草圖模式來建立軸網。
在處理完軸網和標高之后,就可以將建筑模型參考進來。參考時注意正確的調整嵌套的層級。在參考完建筑和結構模型之后,再調節一下參考文件的顯示樣式,就可以開始設計工作了。
建筑模型即使使用出圖規則的功能,仍然不能滿足常規出圖的要求,因此需要建筑專業提供二維的CAD 平面圖來作為機電專業的底圖。在處理的過程中,機電專業較為關注的除了建筑模型的空間關系之外,還有一些梁、柱等結構構件的位置和尺寸信息需要關注。對于機電專業而言,結構模型的信息要求不高。接到結構模型之后,處理方式類似于建筑模型的處理。
反饋建筑結構專業條件,前期條件主要為水暖電各專業的進線位置,制冷機房、消防水泵房、變配電室、消控室或值班室等房間的置和具體的要求,要跟建筑專業設計師落實是否達到相應的規范要求。后期條件主要分為設備洞口和管道橋架洞口。
機電專業的設備洞口大多是在設備已經就位的情況下才會提出,這時只需將機電的信息模型提供給建筑專業即可。建筑專業將暖通、給排水和電氣的圖紙鏈接進建筑信息模型中,將所有百葉消火栓和電箱等設備在建筑的模中打開顯示,其他則關閉。建筑等專業在無異議的情況下,在相應的位置開洞處理,標記洞口尺寸等,這樣就完成了設備開洞的步驟。
風管的洞口都要提出與建筑專業協商,水管提洞情況較少,橋架洞口一般只提較大尺寸如300*300以上的洞口,過小的洞口在施工時現場開洞即可。實際上,設計過程中機電專業是將條件提供給建筑專業,建筑同結構商量條件,最終確定條件如何實現。如基礎的提交采用制作一個簡單的單元,提供簡單的尺寸要求,其上的設備重量則提取自設備中的參數數據,為了保證數據的提取,應保證設備的單元信息錄入到Datagroup中,這樣才可被建筑結構正確的讀取。
由于系統對于文件關聯的追溯性較強,大型的項目就要拆分成多個級別分開建模。目前機電專業拆分模型可以按照建筑功能分開建模,具體拆分區域可以和建筑等專業相統一,也可以分系統(分為給水系統、排水系統、消防系統、照明系統、弱電系統等)建模。這兩種建模方式各有利弊,不同的項目性質可以采用不同的方式。如體量較大的建筑物,建議分區域建模;如系統工藝性較強,建議分系統建模,這樣可以提高設計的效率。
嚴格校審 保證質量
校審工作是整個設計工作中不可或缺的重要環節,也是減少設計失誤的最重要一環。設計院一般要求內部經過校對、審核、審定三個校審環節,并且為了滿足質量控制標準,各級校審意見都必須進行書面記載并存檔。
傳統的設計方式中,設計完成后,設計人員將圖紙打印出來后送交校審人員,審核人員將意見和批注的圖紙一同交由下一級校審,直至審定完成,設計人員根據校審意見修改并收集校審意見存檔。在進行BIM 設計的過程中,同樣可以按傳統的方式將紙質文件提交給校審人員以完成校審工作。由于協作設計本身基于網絡平臺,項目參與人員可以方便地訪問設計成果文件,校審工作也可以通過電子文件進行,并且利用軟件的功能自動化,減少一些工作量。
在利用電子文件進行校審時,校審人員按照約定的時間訪問完成的設計文件,在有問題的地方標記并標明問題內容。校審完成后標記和意見均保留在設計文件中,下一級的校審人員可以避免提出同一個問題,減少工作量。全部校審工作完成后,可以自動生成用于閱讀和存檔的電子表格,打印存檔。
建筑設計在很長的一段時間里仍將脫離不了圖紙,也就是說圖紙是建筑設計中非常重要的一個環節,因此,我們在使用BIM 技術得到二維圖紙應盡可能地滿足傳統設計圖紙的顯示要求和繪圖習慣。三維設計在結果上和傳統設計出的圖紙是一致的,但與傳統的二維設計不同的是所得到的二維圖形是靠三維模型生成,而不是靠手工繪制。

生成的二維圖紙
隨著全球信息化水平的快速發展,傳統二維CAD 設計的弊端也越來越突出,BIM 技術在我國的應用也顯得越來越迫切。然而目前我國BIM技術尚處于發展階段,需要不斷的探索研究。BIM 是對工程項目信息的數字化表達,它是信息技術在我國建筑行業中應用的新方向。由于我國建筑設計行業在BIM 應用方面還存在著諸多障礙,要實現BIM 技術的普及還有很長很艱辛的路要走。為了推動BIM 技術的繼續發展,只有結合BIM 技術在我國的發展現狀,繼續不斷地深入探索研究,認真學習、努力實踐,才能盡快走出一條適合我國BIM 應用的發展之路。
核心關注:拓步ERP系統平臺是覆蓋了眾多的業務領域、行業應用,蘊涵了豐富的ERP管理思想,集成了ERP軟件業務管理理念,功能涉及供應鏈、成本、制造、CRM、HR等眾多業務領域的管理,全面涵蓋了企業關注ERP管理系統的核心領域,是眾多中小企業信息化建設首選的ERP管理軟件信賴品牌。
轉載請注明出處:拓步ERP資訊網http://m.sdyuan.com/
本文標題:三維協同設計聚焦數字化表達
























