0 引言
近年來,隨著房地產業快速發展,電梯產業也空前繁榮,人們日常生活中接觸電梯的機會越來越多。在電梯調試、日常使用中,轎廂沖頂、蹲底的情況時有發生,緩沖器作為最后一種安全保護的電梯安全裝置,就顯得尤為重要。緩沖器支架作為緩沖器的支撐部件,強度和剛度均要得到充分保證。
隨著CAD和CAE軟件發展和普及,設計人員使用這些軟件可以從繁雜的設計計算中解脫出來,將時間和精力投入到產品創新中去,提升產品的競爭力。本文以Creo為平臺,簡述電梯轎廂側緩沖器支架的設計分析過程。
1 技術條件介紹
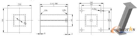
文中所述緩沖器支架如圖1所示。所用槽鋼:型號10(GB/T 706-2008)。圖中六角螺母為焊接螺母,安裝緩沖器之用。緩沖器支架緩沖器支架所用材料均為Q235A。Q235A鋼彈性模量、泊松比、密度、許用應力分別為210GPa、0.3、7850kg/m3、235MPa。
本文針對某型客梯,該型電梯相關參數如下:
載重(Q):1000kg
轎廂白重(P):1200kg
速度(V):1m/s
底坑深度(s):≥1400mm

圖1 緩沖器支架
2 計算及有限元分析
緩沖器支架受力如圖2所示,其中F=(P+1.25*Q)*K*9.81=(1200+1.25*1000)*2*9.81=48069N(此處K為載荷系數,考慮到沖擊載荷,取值為2)。

圖2 緩沖器支架受力圖
忽略緩沖器和緩沖器支架重量影響,因槽鋼處截面積最小,所受應力應最大,計算值為:F/A=48069/(2*12.748*100)=18.85MPa。
安全系數:235/18.85≈12.47
下面利用Cre02.0建立緩沖器支架模型,如圖1有部所示,進入Simulate環境,設置材料、約束、載荷(如圖3所示),進行靜態分析。

圖3 緩沖器支架受力圖
圖4所示為緩沖器支架受力應力云圖,圖5為槽鋼邊線應力曲線。我們發現:槽鋼中間處應力與理論計算基本相符,在槽鋼兩端處局部有應力集中,最大值為38.8MPa,安全系數為235/38.8=6。

圖4 應力云圖

圖5 槽鋼邊線應力曲線
壓穩計算(Q235A材料計算數據見表1)。
表1 Q235A計算數據

截面積:2.5496×105mm2
長度系數μ:2
緩沖器支架對中性軸的慣性矩I:I1=3.6×106mm4,I2=4×106mm4(因I1<I2,所以桿件失穩時,桿截面繞1軸轉動。計算時I取I1值))
緩沖器支架長度l(底坑深度S=1400):608mm
柔度

緩沖器支架細長比

當底坑深度S=1400mm時,細長比λ<λs,因此緩沖器支架可以理解短粗桿,不需要考慮壓穩的問題;當底坑深度S≥i×λp/μ+792=1950mm時,細長比λs≤λ<λp,緩沖器支架是中長桿;當底坑深度S≥i×λp/μ+792=2670mm,細長比λ≥λp,緩沖器支架是細長桿。
下以底坑深度S=1950mm時,計算壓桿穩定。
臨界應力σα=a-bλ=304-1.12×61.6=235MPa
臨界壓力Pαr=σα×A=235×2×12.748×100=599078N
安全系數n=Pα/F=12.5。
下面進行壓桿穩定分析。先將模型中槽鋼的長度改為1158mm,然后進入Simulate環境,利用之前的材料、約束、載荷的設置,重新開始靜態分析,再進行失穩分析。結果如圖6所示,其臨界壓力Pα=12.1×48069=581635N,與理論計算基本一致。

圖6 失穩分析結果
3 結束語
本文利用Creo建模、有限元分析模塊對緩沖器支架進行了設計分析及驗證。因Creo集建模、有限元模塊與一身,減少了不同軟件系統數據轉換錯誤,為機械設計提供了強大的支持。另外還可以根據設計要求,對緩沖器支架進行優化設計,做到物盡其用。
核心關注:拓步ERP系統平臺是覆蓋了眾多的業務領域、行業應用,蘊涵了豐富的ERP管理思想,集成了ERP軟件業務管理理念,功能涉及供應鏈、成本、制造、CRM、HR等眾多業務領域的管理,全面涵蓋了企業關注ERP管理系統的核心領域,是眾多中小企業信息化建設首選的ERP管理軟件信賴品牌。
轉載請注明出處:拓步ERP資訊網http://m.sdyuan.com/
本文標題:基于Creo電梯緩沖器支架設計
























