0 前言
可編程序控制器(PLC)是專為在工業環境下應用而設計的實時工業控制裝置。隨著微電子技術、自動控制技術和計算機通信技術的飛速發展,PLC在硬件配置、軟件編程、通訊聯網功能以及模擬量控制等方面均取得了長足的進步,已經成為工廠自動化的標準配置之一。用內部編程“軟元件”取代繼電器邏輯控制電路中大量的時間繼電器和中間繼電器,簡化控制線路、有效提高系統的可靠性,是PLC的突出特點;根據實際工藝要求,借助于順序功能圖(SFC)和梯形圖來編制用戶程序,實現單臺設備或生產過程的順序控制,則是PLC主要功能的具體體現。本文將以某自動裝箱生產線為例,利用三菱FX2N系列PLC,從硬件設計、軟件編程以及系統調試等方面對PLC控制系統的設計方法進行系統的討論。
1 自動裝箱生產線的控制要求
自動裝箱生產線如圖1所示。按下按鈕SB1時,控制系統起動傳送帶2開始運行:當空箱進入定位位置時,光電開關SQ2動作(SQ2=1),傳送帶2停止運行;延時Is后傳送帶1開始運行,物品跟隨傳送帶1的運動逐個進入箱內,光電開關SQ1負責檢測物品的個數,每落入一個物品,SQ1發出一個脈沖信號;當裝入箱中的物品達到10個時,傳送帶1停止運行,同時起動傳送帶2,重復進行上述工作過程。當按下停止按鈕SB2時,傳送帶1與傳送帶2均停止運行。

2 PLC控制系統的設計與實現
2.1 硬件設計
依據自動裝箱生產線的工藝流程、實際控制需求以及輸入/輸出變量的特點選用三菱FX2N-16MR-001型PLC疊裝式、S點開關量輸入、8點繼電器輸出、基本單元)為核心控制器件;既可滿足本次設計的需要,又為今后生產工藝的調整提供了方便。PLC控制系統的I/O地址如表!所示,與之相對應的外部接線如圖2所示。

2.2用戶控制程序設計
2.2.1 經驗設計法
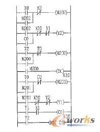
以“自鎖”、“互鎖”、“聯鎖”為基本環節,沿用繼電器邏輯控制電路圖的思想來設計PLC控制系統梯形圖程序的方法被稱為經驗設計法二該方法沒有普遍的規律可循,具有較大的試探性和隨意性,最終的設計結果不唯一;設計周期、設計質量與設計者的經驗有直接關系。對自動裝箱生產線的PLC控制系統而言,用經驗設計法設計出的用戶控制程序如圖3所示C0為計數器,T0為定時器。PLC:在執行該控制程序時十語句共計30條。

圖3經驗設計法設計出的梯形圖程序
2.2.2 采用STL指令的設計方法
STL指令是FX2N系列PLC為編制順序控制程序而專門設計的步進梯形指令,步、轉換和動作是組成SFC的三大要素。STL指令的操作元件是編號S0-V5499的狀態寄存(S0~S9用于初始步)。轉換條件滿足時,代表下一步序的狀態寄存器被置位,代表當前步序的狀態寄存器自動復位。
采用STL指令設計的自動裝箱生產線順序控制程序如圖4所示口狀態寄存器S21~S23分別代表生產線2起動、1S延時和生產線1起動等順序相連的狀態;起動按鈕、停止按鈕、定時器、計數器,S:光電開關的狀態作為轉換條件;初始步SO由M 8002初始化脈沖觸發(脈寬為一個掃描周期少。PLC執行該控制程序時,語句共計26條。

圖4采用S TL指令的自動裝箱生產線順序控制程序
2.2.3 兩種設計方法的比較
a.通用性。由于不同廠家生產的各類PLC均具有針對線圈和觸點的基本邏輯指令,因此,采用經驗設計法設計的用戶程序具有廣泛的通用性;作為順序控制程序設計時的專用指令,STL指令僅適用于某一廠家所生產的某些PLC產品、實現通用與互換還有待于各生產廠家對國際標準的認同與貫徹。
b.程序所占用的內存空間。由文中所述設計實例可知:采用STL指令設計順序控制用戶程序,可有效減少內存占用空間;特別對于復雜控制系統,可顯著縮短用戶程序的執行時間,提高PLC的輸入、輸出響應速度。
c.電路結構。采用經驗設計法設計的控制程序要求具有最基本的自鎖和聯鎖功能,電路較為繁瑣,不適宜復雜控制系統的程序設計;采用STL指令設計順序控制程序,具有使用方便、易于掌握和編制的特點,且允許“雙線圈輸出”,可有效提高輸出電路的設計效率,更適于復雜控制系統的用戶程序編制。
2.3 系統調試
基于上述設計思想,采用FX-20 P-E袖珍式液晶顯示編程器編程,在F}2、一I 6M R一UUI型}} c上運行通過;經模擬調試,完全符合裝箱生產線的自動控制要求。
3 結束語
綜上所述,以PLC為核心器件設計自動控制系統時,應充分考慮系統的復雜程度、控制要求、PLC的響應速度以及設計效率等諸多因素,有針對性地選擇硬件單元和編程方法,使設計出的控制系統能夠最大限度地滿足生產自動化的要求,真正體現PLC“為工業環境下應用而設計,易于編程、易于與其它控制設備相融合”泊勺基本原則。
核心關注:拓步ERP系統平臺是覆蓋了眾多的業務領域、行業應用,蘊涵了豐富的ERP管理思想,集成了ERP軟件業務管理理念,功能涉及供應鏈、成本、制造、CRM、HR等眾多業務領域的管理,全面涵蓋了企業關注ERP管理系統的核心領域,是眾多中小企業信息化建設首選的ERP管理軟件信賴品牌。
轉載請注明出處:拓步ERP資訊網http://m.sdyuan.com/
本文標題:PLC在自動裝箱生產線中的應用
























