(一)IP SAN 概述
傳統的存儲專用網絡(SAN-Storage Area Network)一般采用FC SAN(Fiber Channel Storage Area Network),FC SAN價格昂貴,性能優越。但由于光纖的距離限制,意味著在遠距離存儲時FC SAN 不是一個很好的選擇。例如一個公司有兩個分部,相距500km,那么則難以采用FC SAN 布局。同時一般中小型企業對于FC SAN 昂貴的基礎設施依然望塵莫及。
IP SAN(Internet Protocol Storage Area Network)由此應運而生。IP SAN 可以充分利用已有的網絡基礎設施,在IP 網絡的兩端采用光纖連接的SAN,通過IP 網絡進行數據的傳輸。使用IP 網絡進行傳輸有很多優點。首先IP 的管理更加簡單,IP 網絡技術相當成熟,IP SAN 減少了配置、維護、管理的復雜度。企業現有的網絡管理人員就可以完成日常的管理與維護工作。其次IP 的兼容性更好,不同廠商之間的產品具有互操作性。而且IP 網絡已經由很多健壯,成熟的機制。傳統的IP 網絡傳輸時基于文件級別(file-level)的,而IPSAN 提供通過已有的IP 網絡基于塊級別(block-level)的傳輸。基于IP 的塊級存儲(Block storage over IP)有多種不同的方法,目前最常用的三種協議是:iSCSI(Internet SmallComputer System Interface),FCIP(Fiber Channel over IP),iFCP(Internet Fiber Channel Protocol)。
(二)IP SAN 的拓撲結構
IP SAN 的基本拓撲結構是兩個或者更多FC SAN 島(FC SANisland)之間用IP 網絡相連(如圖1)。FC SAN 島之間依然采用傳統FC SAN 的架構,有光纖連接存儲(storage)和服務器(servers)。

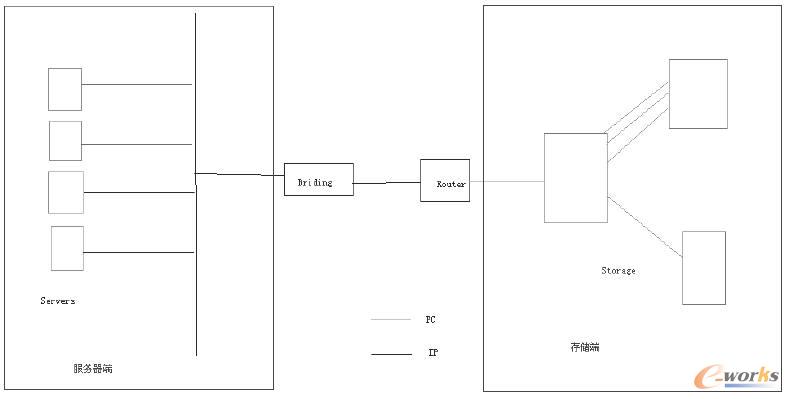
圖1
圖1 是外展(Extension)拓撲結構,這是一種最具代表性的拓撲結構,也是在實際中運用最多的拓撲結構。當一個島(island)發出傳遞數據請求時,FC 數據必須通過iFCP 或者FCIP 協議封裝,到達另一端島(island)時再解除封裝。這種拓撲結構妥善解決了FC SAN 不能克服的遠距離傳輸問題。實際應用中IP SAN 有多種靈活多變的拓撲結構,還有較常用的本地(Native)拓撲,橋(Bridging)拓撲。
本地(Native)拓撲結構類似圖1,只是存儲和服務器之間全部采用以太網連接, 沒有光纖設備。傳輸采用iSCSI(Internet SCSI)協議,iSCSI 協議以太網進行數據的傳輸,發起者(Initiators)可能直接連接到iSCSI 目標(iSCSITargets),也可能通過標準以太網的路由器(routers)和交換器(switchs)連接。
橋(Briding)拓撲的服務器群和存儲部分分開,服務器端個服務器之間以以太網連接,沒有FC 設備,而存儲部分則用光纖連接,數據傳輸較快。兩端用網橋連接起來,服務器端的請求通過網橋設備到達存儲端,存儲端的數據通過某種協議封裝后通過IP 網絡傳輸。這種拓撲結構使用于已存在一個IP 網絡環境的部門去訪問該部門用FC 連接大型存儲設備。如圖2。

圖2
(三)基于塊級別的存儲
不同于傳統IP 網絡傳輸,IP SAN 和FC SAN,直連存儲(DAS-Directly Attached Storage) 一樣, 是基于塊級別(Block-level)的網絡存儲。下面的小節將簡單介紹最常用的三種協議:iSCSI,FCIP 和iFCP。每一種協議都對IP 進行了擴充,并使得服務器與外部存儲之間的連接更加便捷。
1.iSCSI(SCSI over IP)
iSCSI 提供了一種在TCP/IP 上傳輸SCSI 數據和指令的方法,通過將SCSI 命令封裝在IP 網絡上傳輸。封裝工作在主機的總線適配器(HBA-Host Bus Adapter)完成。這就要求主機必須配置一塊iSCSI HBA 卡。基于主機封裝的iSCSI I/O一般用一塊以太網卡進行封裝。因為iSCSI 數據和指令基于IP 傳輸,因此可以通過路由技術或交換技術傳送到標準的以太網設備。
2.FCIP(FC over IP)
通過IP 網絡的隧道(Tunneling)技術,將FC 數據幀封裝在IP 包進行傳輸。由一對橋(Bridge)設備負責數據的封裝與解封。這種協議對于擴展FC SAN 之間的距離非常有效。不同于下面即將介紹的iFCP 協議,如果主機與存儲的距離較遠,FCIP 協議只支持端到端的連接,主機與存儲設備之間沒有路由和交換。由此,FCIP 最常運用于兩個孤立的島(island)之間的數據傳輸,每個島之間只有一個第二網(Frabic)。
3.iFCP(IP as the inter-switch fabric)
同樣也是利用現有的IP 基礎設備,iFCP 使用IP 作為光纖通道交換機之間的交換協議,這點與FCIP 相類似,但iFCP支持的并不是端到端(point-to-point)的連接,該協議支持主機通過現有的IP 網絡獲取存儲能力。例如,如果存儲和主機之間距離較遠,存儲和主機之間可以用路由器或者交換機相連,最經典的模式是才有Core/Edge 的擴展方式來提供最多的可用端口。
(四)結論
IP SAN 基于FC SAN 的基礎做了以下改進,克服了傳統FC SAN 的許多瓶頸。首先,IP SAN 的存儲設備運行在IP 網絡上,這使得其具有了網絡傳輸(NAS-Network AttachedStorage)的部分優點,即用戶可以“隨時隨地”的取用數據。其次,IP SAN 可以使用與遠距離高性能傳輸,其距離遠遠大于FC SAN 的建議距離(200km 以內)。再次,IP SAN 可以利用現有的IP 基礎網絡設施,不需花費巨大的代價淘汰原有的設備換取高性能的數據存儲。最后,IP SAN 的管理簡單,FC SAN通常需要一個經過專門培訓的SAN 管理員,而IP SAN 則顯得“平易近人”,一般的IP 網絡管理員均可以操作。
核心關注:拓步ERP系統平臺是覆蓋了眾多的業務領域、行業應用,蘊涵了豐富的ERP管理思想,集成了ERP軟件業務管理理念,功能涉及供應鏈、成本、制造、CRM、HR等眾多業務領域的管理,全面涵蓋了企業關注ERP管理系統的核心領域,是眾多中小企業信息化建設首選的ERP管理軟件信賴品牌。
轉載請注明出處:拓步ERP資訊網http://m.sdyuan.com/
本文標題:淺析基于IP SAN 的存儲網絡架構
























